为了进一步加快学校教师公寓的周转,转变思想观念,提升服务理念,缓解教职工住房困难,学校资产办公室与宝山公租房管理部门协商,积极为Beat365教职工争取租房机会,现已落实“中怡雅苑”公租房项目(一期)。
“中怡雅苑”公租房申请主要条件为:具有本市常住户口或持有《上海市居住证》,与Beat365唯一官方网站签订1年(含1年)以上劳动合同,在本市人均住房建筑面积低于15平方米,住房面积的计算标准按本市相关规定执行;未享受本市保障性住房政策(廉租住房和共有产权保障住房)。
资产办将在近期安排现场宣讲、看房等相关工作,有意向的老师可以关注资产办官网http://www.fdcc.shu.edu.cn/ 或者留意部门、学院通知。
有意向的老师可前往www.bsgzf.com.cn ,选择“单位申请”,“中怡雅苑”,“选择意向房型排队”进行登记,并将工号、姓名、学院、联系方式发送至资产办邮箱 fdcc@shu.edu.cn, 资产办将根据提交信息与宝山主管部门对接,统一办理相关手续,方便沟通工作。
“中怡雅苑”公租房情况介绍。
中怡雅苑公租房项目位于宝山区顾村镇,项目地址为菊泉街158弄2号,3号、4号,5号、6号,9号、10号,11号、12号,该项目共5幢,房源共计452套,总建筑面积45530.44平方米,其中一居室148套,二居室160套,三居室144套,停车位300余个(含地下),目前已启动第一期200余套供选择申请。
中怡雅苑公租房项目装修按照公租房装修标准执行。
参考房型和租金价格如下列表(仅供参考,以实际为准):
1、一居室

平均建筑面积:60.95~64.24㎡
平均月租金:2116~2377元/月
客厅配置:餐桌、餐椅、沙发、冰箱;
厨房配置:橱柜,吸油烟机和双头电磁灶;
卫生间配置:卫浴设施、电热水器、洗衣机;
卧室配置:空调和基本家具,包括双人床、床头柜(或书桌)和衣柜等。
2、二居室

建筑面积:96.66~101.90㎡
月租金:2961~3482元/月
客厅配置:餐桌、餐椅;
厨房配置:橱柜,吸油烟机和双头电磁灶;
卫生间配置:卫浴设施、电热水器;
卧室配置:空调和基本家具,包括双人床、床头柜(个别次卧使用书桌)和衣柜等。
3、三居室

平均建筑面积:141.93㎡
平均月租金:3560~4062元/月
客厅配置:餐桌、餐椅;
厨房配置:橱柜,吸油烟机和双头电磁灶;
卫生间配置:卫浴设施、电热水器;
卧室配置:空调和基本家具,包括双人床、床头柜(个别次卧使用书桌)和衣柜等。
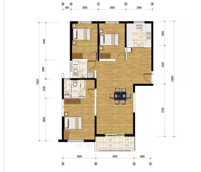
4、四居室

平均建筑面积:142.50~142.91㎡
平均月租金:3887~4458元/月
客厅配置:餐桌、餐椅;
厨房配置:橱柜,吸油烟机和双头电磁灶;
卫生间配置:卫浴设施、电热水器;
卧室配置:空调和基本家具,包括双人床、床头柜(个别次卧使用书桌)和衣柜等。
现场照片:
(资产办工作人员现场考核拍摄,实际情况较为宽敞)





